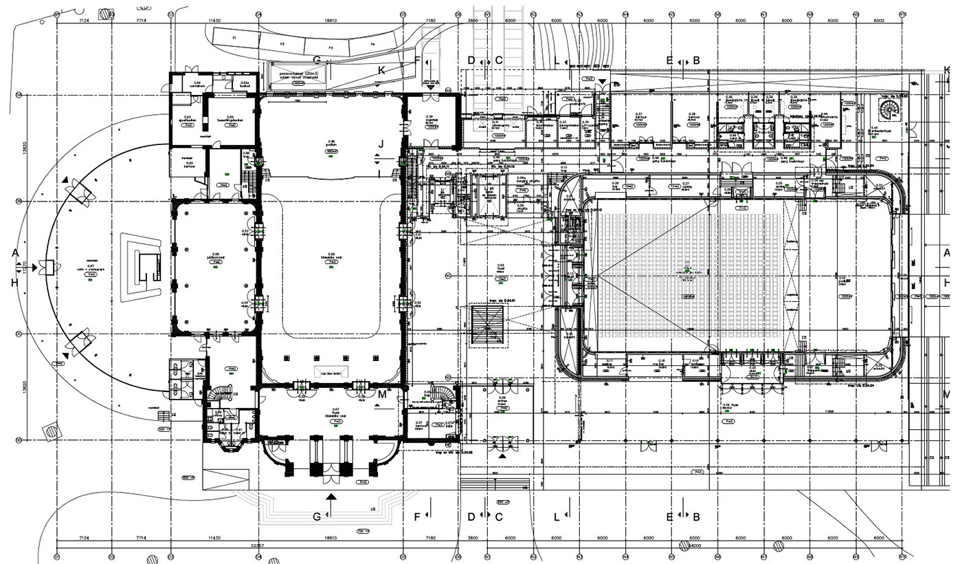
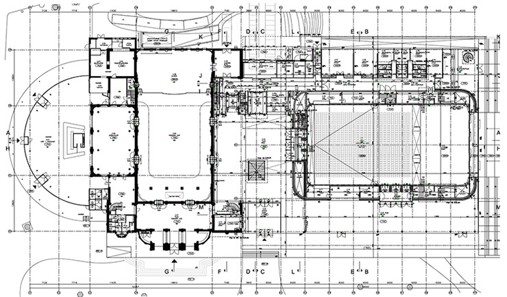
MUSIS ARNHEM

nieuwbouw en renovatie monumentaal gebouw

Opdrachtgever: Musis en Stadstheater Arnhem

Opdracht: ontwerp en advies, begeleiding aanbesteding en oplevering audiovisuele voorzieningen en kabelinfrastructuur

Omvang: nieuwbouw en renovatie monumentaal gebouw

 

Start project: november 2014

Oplevering: november 2017

 

Architect: Van Dongen - Koschuch

Uitvoering: Mertens Bouw, Homij Technische Installaties

Adviseurs: Stevens van Dijck Bouwmanagers en Adviseurs,Nelissen Ingenieursbureau, Peutz, Jaap Oostveen, Theater Advies

 

Publicaties:

PersPodium januari 2016

Architectenweb

 

Awards:

Heuvelinkprijs 2018

Gulden Feninks Award 2018

Duitse Iconic Award 2018

 

Adres: Velperbinnensingel 10, 6811 BP Arnhem

Telefoon: 026 443 7343

Website:  www.musisenstadstheater.nl

 

QUOTE:

'Als je een project opstart met een dermate hoog ambitie gehalte op technisch vlak, zoals bij het verbouwen van Musis te Arnhem, dan kun je twee dingen doen. Je kan het helemaal zelf oppakken of je omringen met specialistische kennis en begeleiding en hiervan op vele manieren profiteren. Wij kozen voor het laatste en daarbij was de keuze voor Piqture eenvoudig. Zij laten je constant voelen dat betrokkenheid, kennis en slagvaardigheid wel degelijk bij een partij kan zitten. Het comfortabele gevoel van gehoord, gezien en zeker begrepen worden, terwijl je zelf achterover kan gaan zitten en genieten...."

 

– Mike van Dalm, hoofd techniek Musis Arnhem –

 

© 2018

ONTWERP EN REALISATIE: WWW.AMMARIN.NL